5+ Mẫu bản vẽ nhà đẹp, chi tiết cho căn nhà của bạn ẽ giúp chúng ta hình dung được ngôi nhà tương lai trước khi xây dựng. Nhờ bản vẽ, chúng ta có thể biết được bố cục phòng, kích thước, vật liệu xây dựng và nhiều thông tin chi tiết khác. Chính vì vậy, bản vẽ đóng vai trò quan trọng trong việc đảm bảo ngôi nhà được xây dựng đúng theo ý muốn của chủ nhà và tránh những sai sót không đáng có. Cùng Song Thổ tìm hiểu những mẫu bản vẽ thiết kế nhà đẹp trong năm 2024 nhé !
5+ mẫu bản vẽ nhà đầy đầy đủ tiện nghi cần những gì?
Bản vẽ nhà là một tài liệu kỹ thuật quan trọng trong xây dựng. Bản vẽ này cung cấp một bản mô tả chi tiết về ngôi nhà, bao gồm hình dáng, kích thước và các yếu tố cấu thành. Nhờ bản vẽ, chúng ta có thể hình dung rõ ràng ngôi nhà trước khi xây dựng.
Một bộ hồ sơ bản vẽ nhà hoàn chỉnh thường bao gồm ba phần chính:
Kiến trúc: Thể hiện hình dáng bên ngoài, bố cục các phòng, cửa sổ, cửa ra vào,…
Kết cấu: Mô tả phần khung nhà, móng, cột, dầm, sàn,… đảm bảo ngôi nhà vững chắc.
Kỹ thuật: Bao gồm hệ thống điện, nước, thông gió,… phục vụ cho sinh hoạt hàng ngày.

Các bản vẽ thiết kế nhà thường được trình bày một cách đơn giản, dễ hiểu để bất kỳ ai cũng có thể nắm bắt được ý tưởng thiết kế.
- Bản vẽ kiến trúc: Đây là bản vẽ tổng thể của ngôi nhà, bao gồm hình dáng bên ngoài, bố cục các phòng, cửa, và thậm chí cả sân vườn, hàng rào. Bạn có thể hình dung ngôi nhà của mình sẽ như thế nào qua bản vẽ này.
- Bản vẽ kết cấu: Bản vẽ này tập trung vào phần khung nhà, móng, cột, dầm,… để đảm bảo ngôi nhà vững chắc. Bản vẽ kết cấu đòi hỏi kiến thức chuyên môn cao và được thực hiện bởi các kỹ sư xây dựng.
- Bản vẽ kỹ thuật: Bản vẽ này mô tả hệ thống điện, nước, thông gió trong nhà. Nhờ bản vẽ này, bạn sẽ biết được vị trí các ổ cắm, công tắc, đường ống nước,…
- Những điều cần lưu ý khi xem bản vẽ thiết kế nhà
Khi xem bản vẽ thiết kế nhà, chủ nhà cần đặc biệt chú ý đến các điểm sau:
- Bản vẽ tổng mặt bằng: Đây là bản vẽ quan trọng nhất, giúp bạn hình dung tổng thể bố cục ngôi nhà, từ số lượng phòng, vị trí phòng đến các không gian sinh hoạt chung. Hãy kiểm tra kỹ xem bản vẽ đã đáp ứng đầy đủ yêu cầu của gia đình bạn chưa.
- Bản vẽ phối cảnh: Bản vẽ này sẽ giúp bạn hình dung không gian sống một cách trực quan nhất. Bạn có thể dễ dàng hình dung ngôi nhà của mình sẽ trông như thế nào khi hoàn thiện.
- Thời gian thi công: Hãy xác định rõ thời gian dự kiến hoàn thành công trình để có kế hoạch phù hợp.
- Giải đáp thắc mắc: Nếu có bất kỳ chi tiết nào chưa rõ hoặc muốn thay đổi, hãy trao đổi ngay với kiến trúc sư để được tư vấn và điều chỉnh kịp thời. Việc này sẽ giúp bạn tránh được những rắc rối phát sinh trong quá trình xây dựng.
Bảng vẽ nhà ở 1 tầng 4x8m
Với diện tích khiêm tốn 32m2 (4x8m), việc thiết kế một ngôi nhà một tầng đầy đủ công năng như phòng khách, phòng ngủ và phòng ăn là một thử thách. Tuy nhiên, với bản vẽ thiết kế thông minh, bạn hoàn toàn có thể biến ước mơ về một không gian sống tiện nghi thành hiện thực. Hãy cùng khám phá mẫu thiết kế nhà một tầng 32m2 dưới đây để tìm kiếm những giải pháp tối ưu cho ngôi nhà của mình.

Bản vẽ nhà một tầng này được thiết kế với sự tối ưu hóa không gian từng khu vực chức năng, tạo nên một không gian sống hài hòa và thoải mái cho cả gia đình.
Với bản vẽ này, từng góc nhỏ trong ngôi nhà một tầng đều được tận dụng tối đa, mang đến một không gian sống tiện nghi và phù hợp với nhu cầu của gia đình bạn.
Bản vẽ thiết kế nhà đẹp 50m2
Với diện tích khiêm tốn 50m2, bản thiết kế này đã khai thác tối đa mọi không gian, tạo nên một ngôi nhà hiện đại, tiện nghi. Phân chia rõ ràng giữa phòng bếp và phòng khách không chỉ đáp ứng nhu cầu sử dụng mà còn mang đến sự thông thoáng, gọn gàng cho cả ngôi nhà.

Bản vẽ nhà 50m2
Bản vẽ 1 tầng 2 phòng ngủ
Giải pháp tối ưu cho không gian sống của gia đình bạn. Với thiết kế thông minh, chúng tôi giúp bạn tận dụng tối đa diện tích, tạo nên một ngôi nhà đẹp, hiện đại và phù hợp với nhu cầu của gia đình từ 2-4 thành viên

Bản vẽ 1 tầng 2 phòng ngủ
Theo như bản vẽ thiết kế nhà, chúng ta có thể thấy thiết kế căn nhà đảm bảo các chức năng chính như phòng ngủ, phòng khách, phòng bếp, nhà vệ sinh. Cách bày trí khoa học giúp cho không gian sống của bạn vẫn vô cùng ngăn nắp, gọn gàng, không có sự bất tiện nào cho các thành viên.
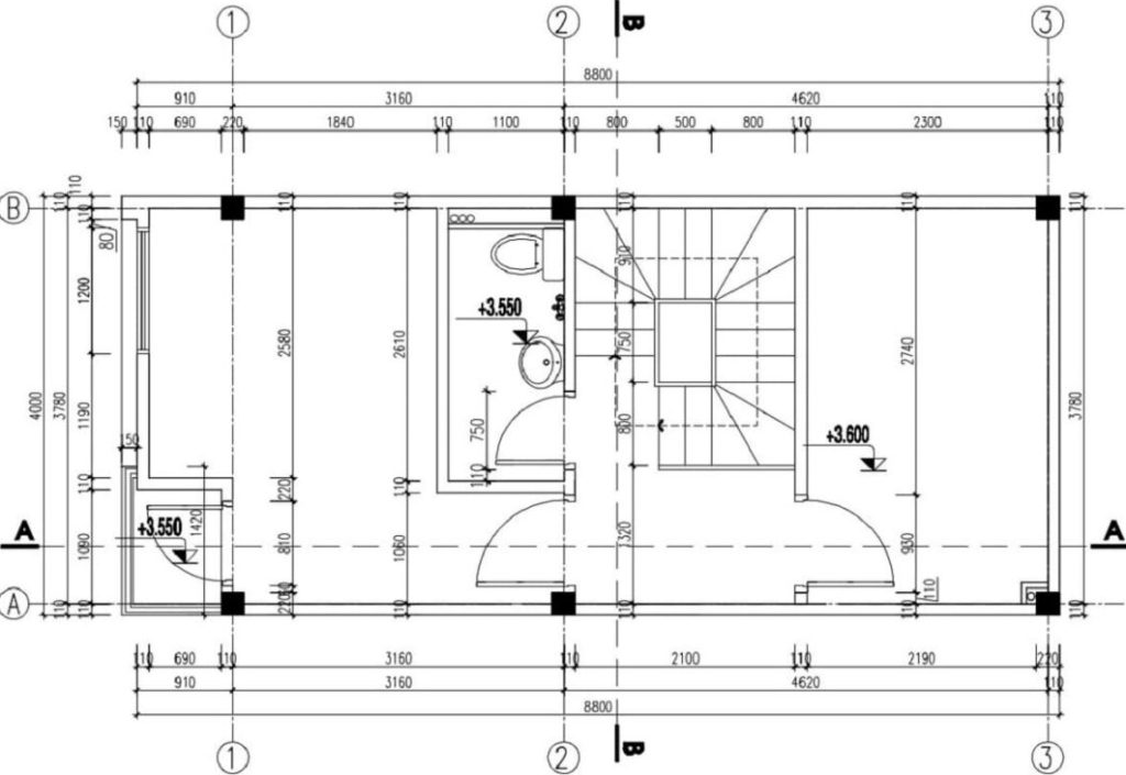
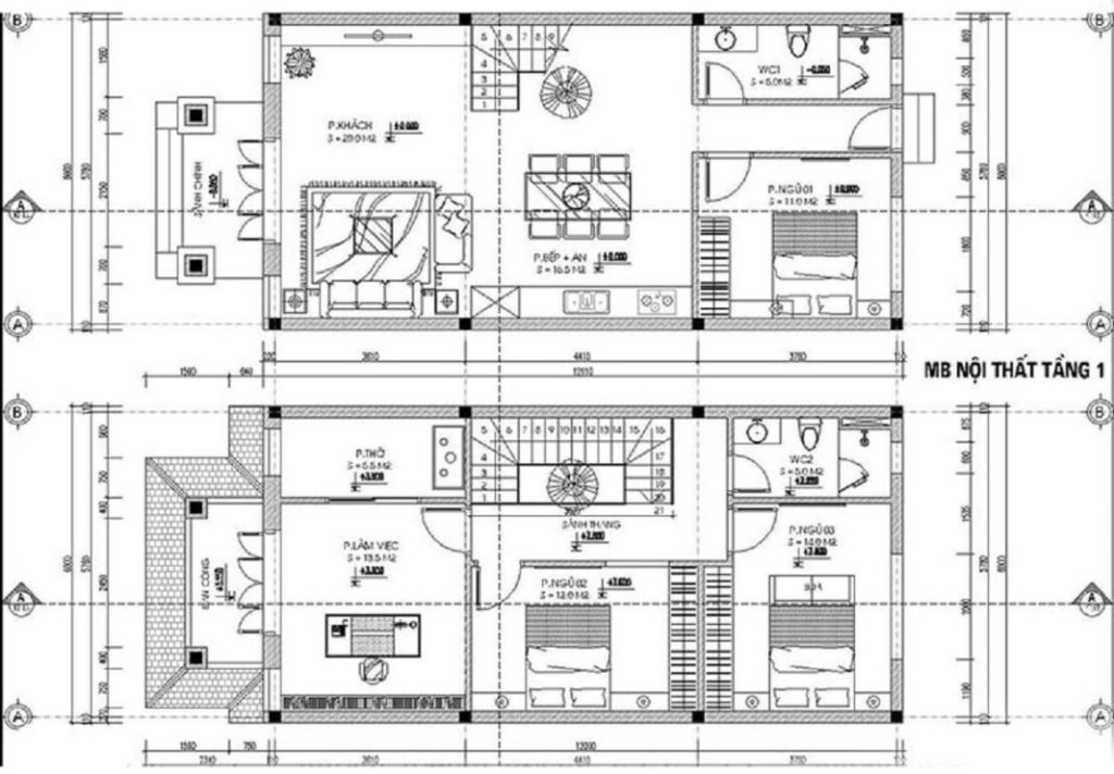
Bảng vẽ thiết kế 2 tầng
Thiết kế nhà đang ngày càng được ưa chuộng bởi sự tiết kiệm diện tích. Tuy nhiên, nhiều người lo lắng về việc bố trí nội thất cho kiểu nhà này. Kiến trúc Nội thất Song Tho xin giới thiệu một giải pháp tối ưu với bản vẽ nhà ống dưới đây. Mặt bằng tầng 1 được thiết kế khoa học, bao gồm khu vực để xe, phòng khách và không gian bếp ăn thông thoáng, giúp tận dụng tối đa diện tích.

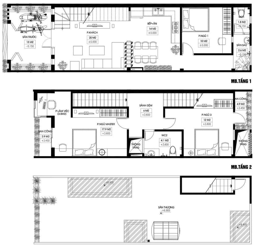
Bản vẽ nhà diện tích 5×20 2 tầng có mặt tiền
Nhà 2 tầng mặt tiền 6m: Một trong những mẫu nhà phố được yêu thích nhất hiện nay. Khám phá ngay những bản vẽ thiết kế chi tiết và sáng tạo để xây dựng ngôi nhà mơ ước của bạn.

Nhà 2 tầng hiện đại, tiện nghi: Bố trí không gian thông minh, tối ưu cho gia đình 3-4 người.
Tầng 1: Phòng khách, bếp ăn, phòng ngủ linh hoạt.
Tầng 2: Phòng làm việc, phòng thờ, đáp ứng đa dạng nhu cầu. Nội thất gọn gàng, tiết kiệm diện tích.
Tham khảo thêm nhiều mẫu nhà cấp 4 đẹp tại: Xu Hướng Xây Dựng Nhà Cấp 4 Năm 2024: Đổi Mới và Tương Lai Bền Vững
Song Thổ vừa chia sẻ cho các bạn những mẫu nhà thiết kế trong năm 2024. Hy vọng những thông tin chúng tôi cung cấp sẽ mang lại hữu ích cho việc lựa chọn các mẫu thiết kế nhà phù hợp với mọi người
